Bauten
Objekte
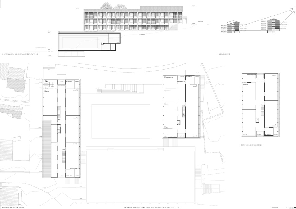
Wettbewerb
Büro
Auslober Gemeinde Klosters-Serneus
Neubau
Jahr 2014
Projektwettbewerb im selektiven Verfahren
3. Rang