Bauten
Objekte
Wettbewerb
Büro
Schulbauten / Kantonsschule Heerbrugg / Heerbrugg
Wohnüberbauung / BAG Areal / Gebenstorf
Wohnüberbauung / Wohnsiedlung Oerlikon / Zürich
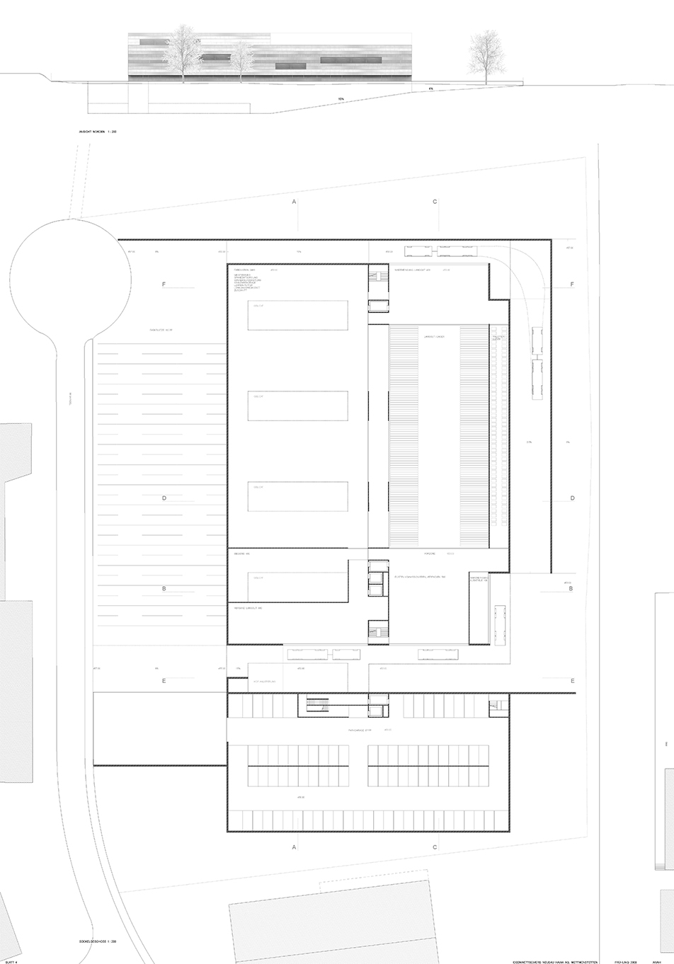
Gewerbehaus / HAWA AG / Mettmenstetten
Schulbauten / Kantosschule Wattwil / St.Gallen
Verwaltung / Raiffeisenbank / Galgenen
Wohnungsbau / Vogelsanggasse 7 / Altdorf
Wohnüberbauung / Erweiterung am Hohlweg / Rapperswil Jona
Arealüberbauung / Freilager Albisrieden Gebiet A / Zürich
Sportanlage / Doppelturnhalle / Auw
Auslober HAWA AG
Neubau
Jahr 2008
Projektwettbewerb in Konkurrenz
1991-1995
1996-2000
2001-2005
2006-2010
2011-2015
2016-2020
2021-2025