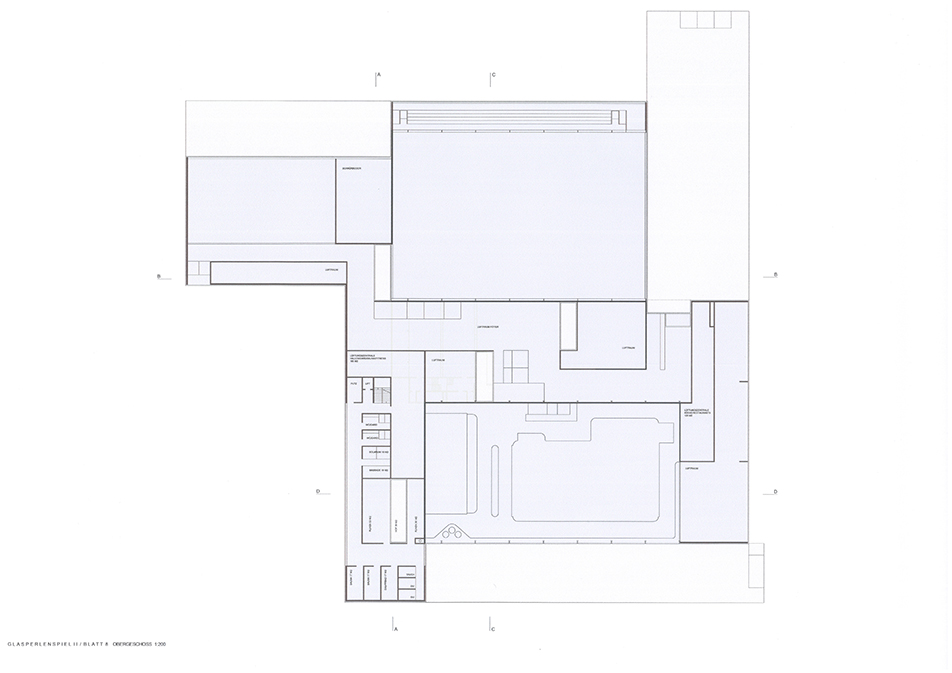
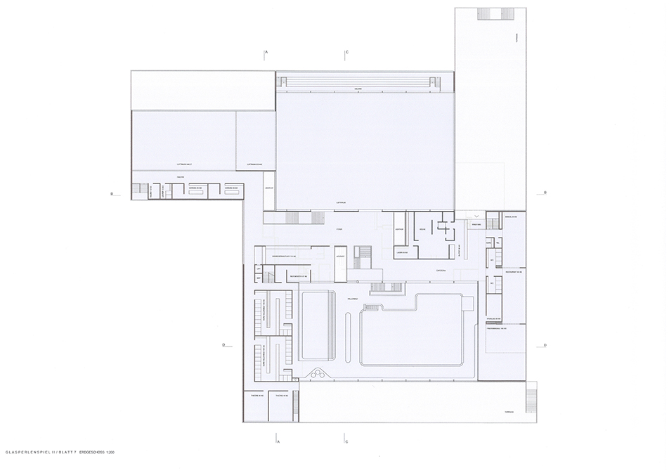
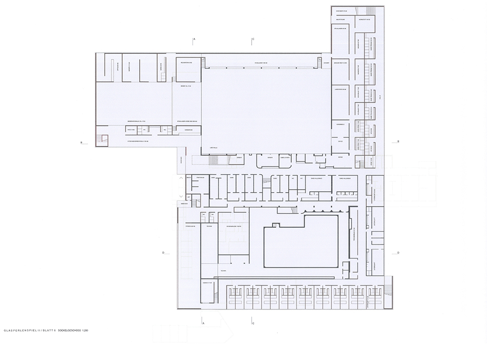
Auslober Genossenschaft SGU

Gesamterneuerung und Erweiterung

Jahr 1998

Projektwettbewerb offen 2-stufig

1. Rang