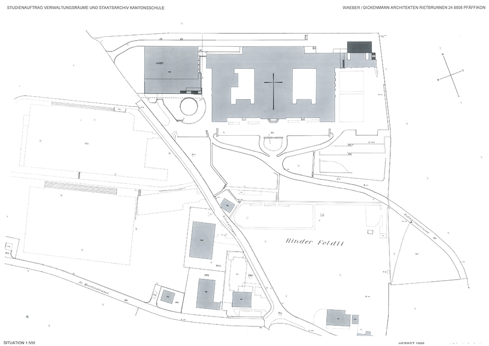
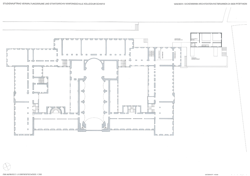
Auslober Kanton Schwyz

Erweiterung und Umnutzung für Verwaltungszwecke

Jahr 1996

Studienauftrag in Konkurrenz

1. Rang