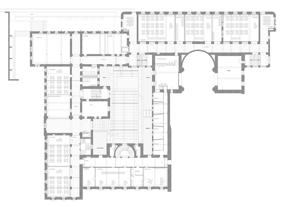
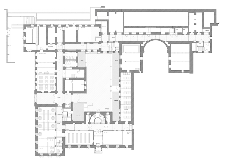
Bauherrschaft Kanton SchwyzRealisierung 2005-2010Projektwettbewerb offen 2-stufigBilder Klaus Pichler