Bauten
Objekte
Wettbewerb
Büro
Bauherrschaft H. & I. Hauser-Schöller
Realisierung 1993-1995
Direktauftrag
Bilder: Vital Stoll
Bilder
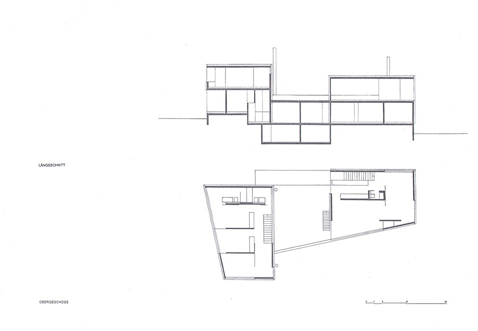
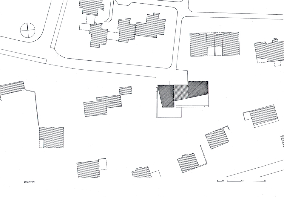
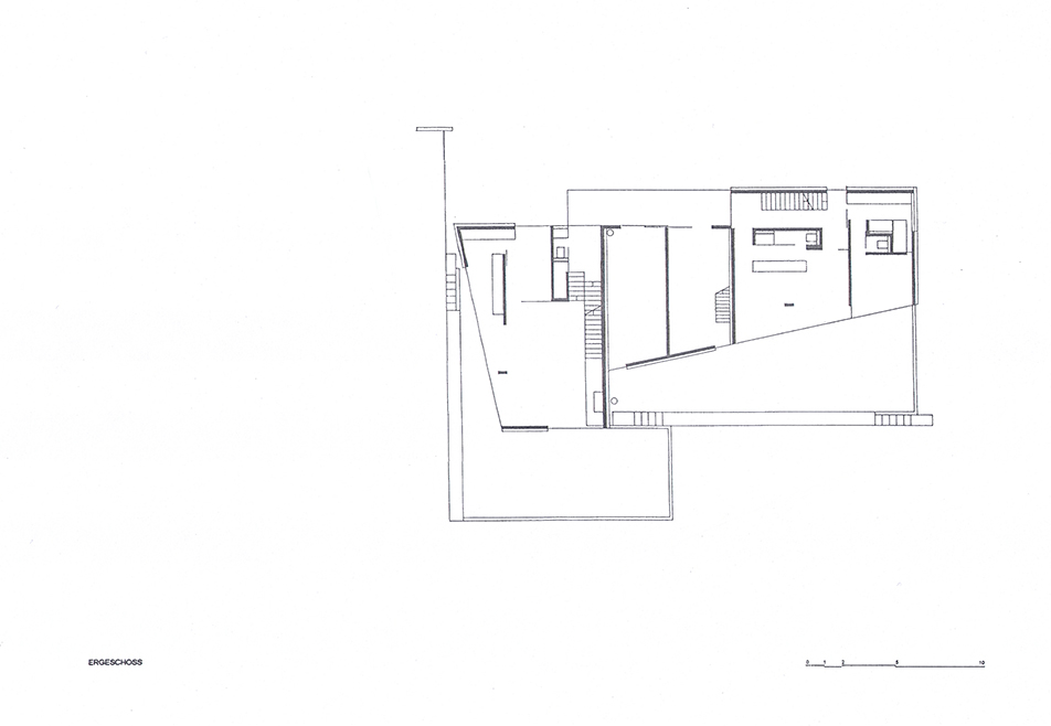
Pläne