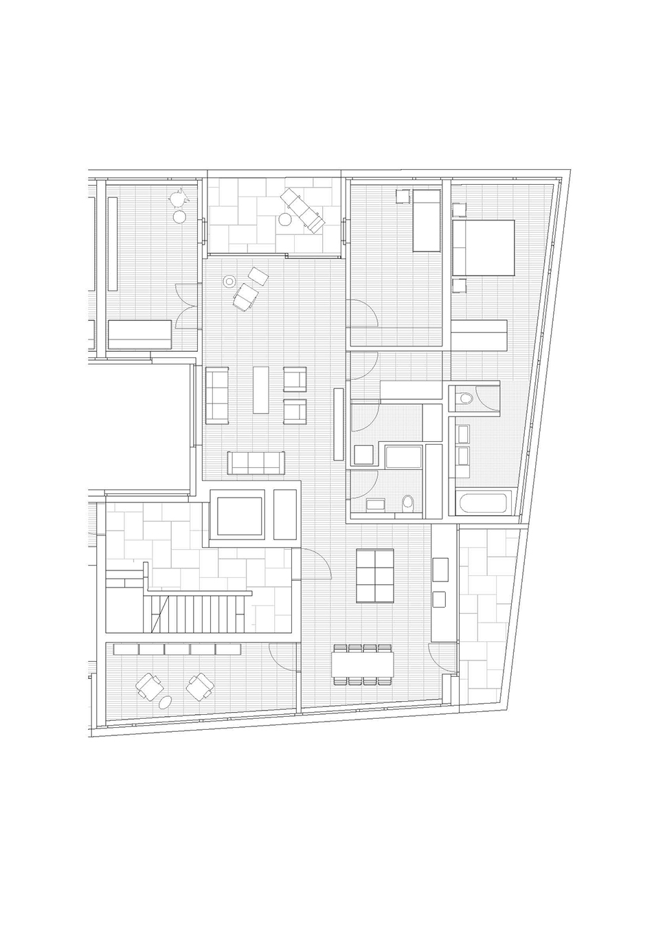
Bauherrschaft Varibelle GmbH

Realisierung 2007

Direktauftrag

Bilder Klaus Pichler