Bauten
Objekte
Wettbewerb
Büro
Bauherrschaft H.Roth
Realisierung 2001-2002
Direktauftrag
Bilder Klaus Pichler
Bilder
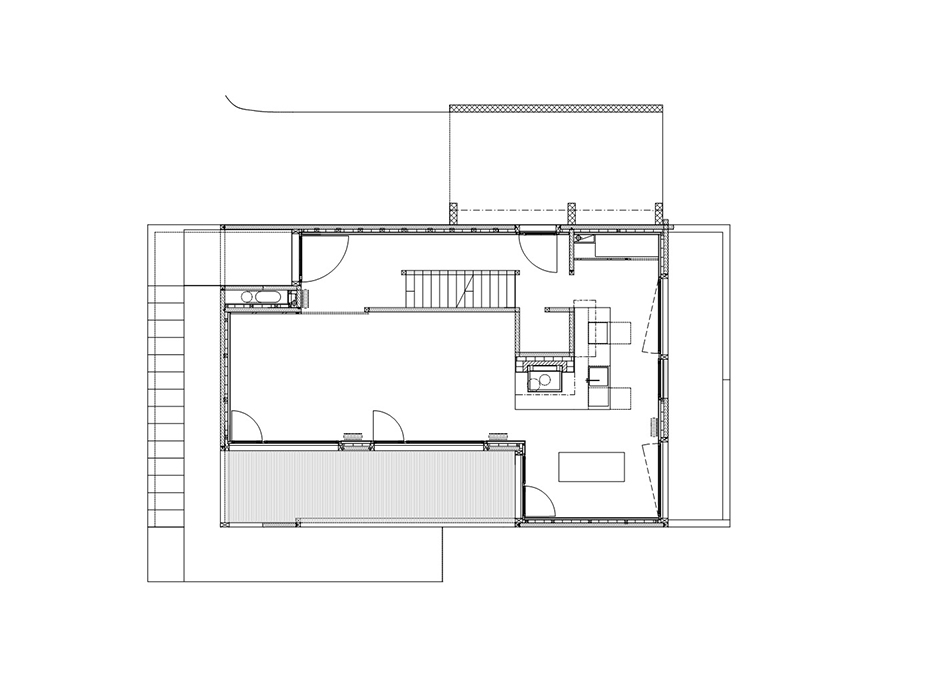
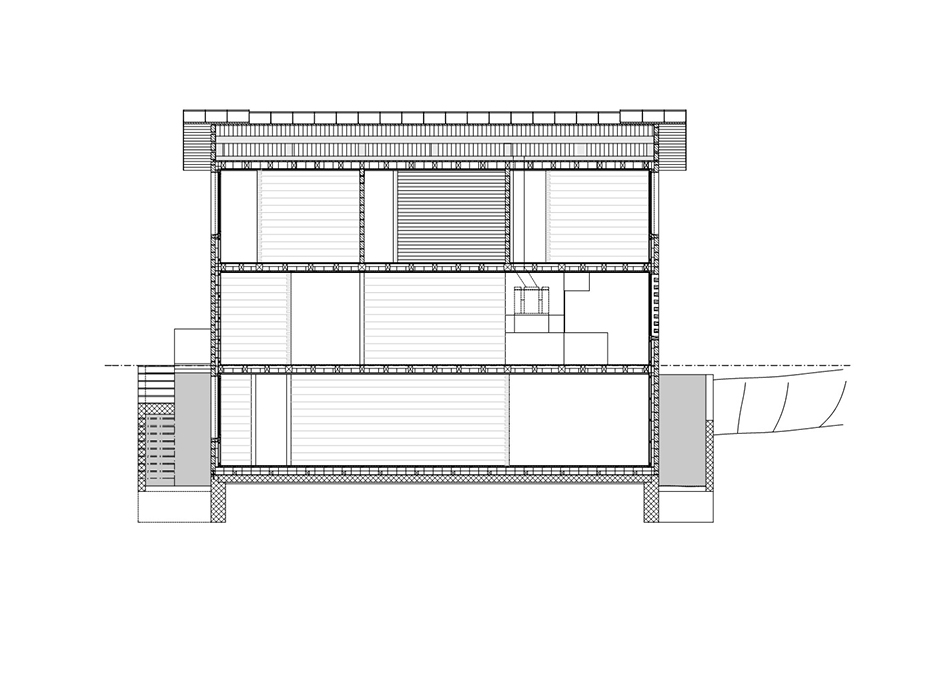
Pläne