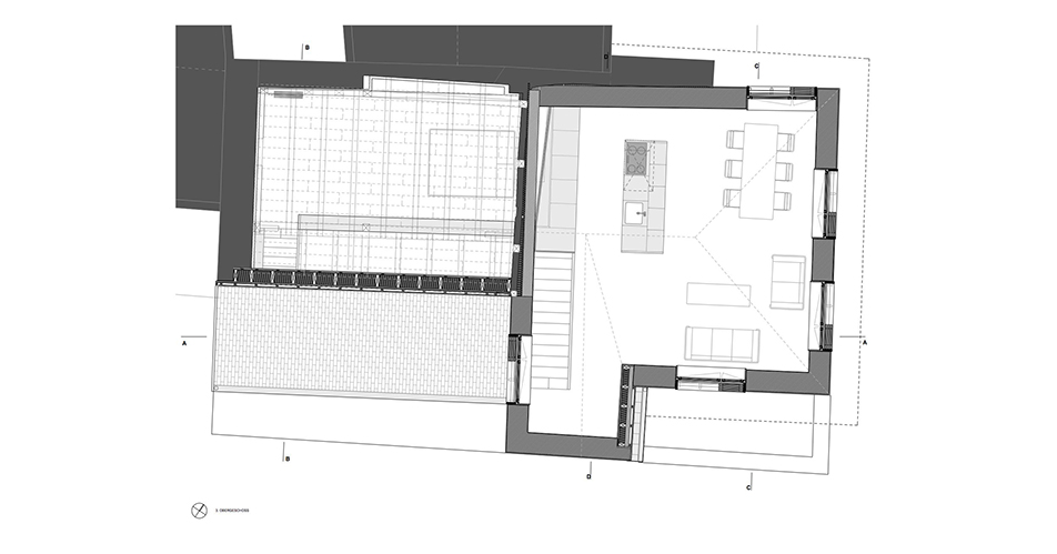
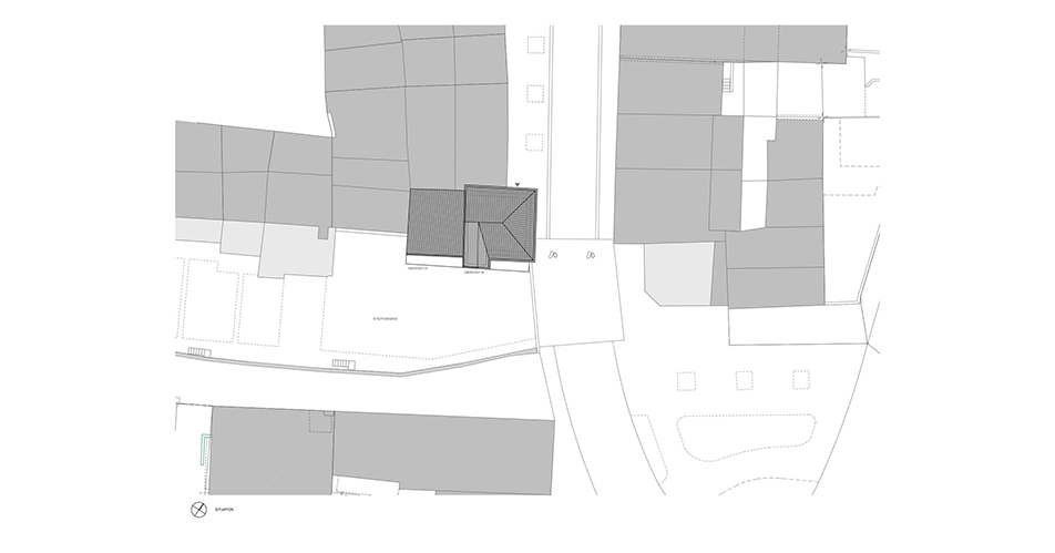
Bauherrschaft Korporation Sursee

Realisierung 2011-2013

Projektwettbewerb offen 1-stufig

Bilder Bruno Meier