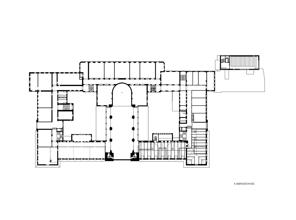
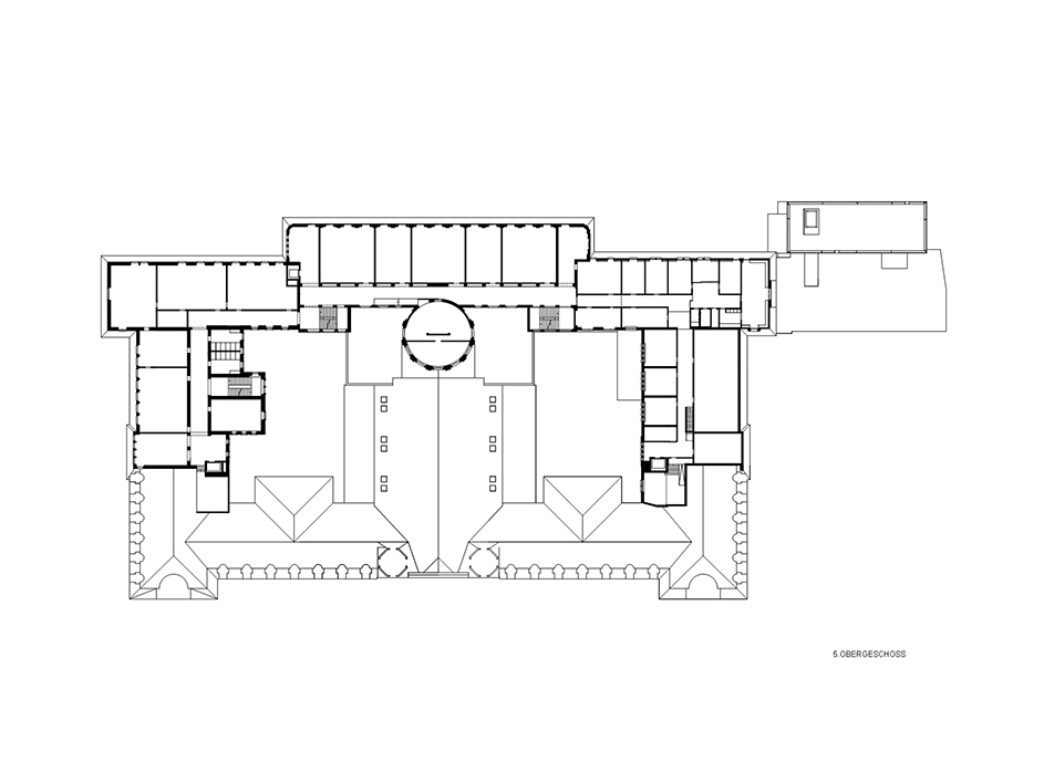
Bauherrschaft Kanton Schwyz / 6430 SZ

Realisierung 1997-2003

Studienauftrag in Konkurrenz

Bilder Georg Sidler