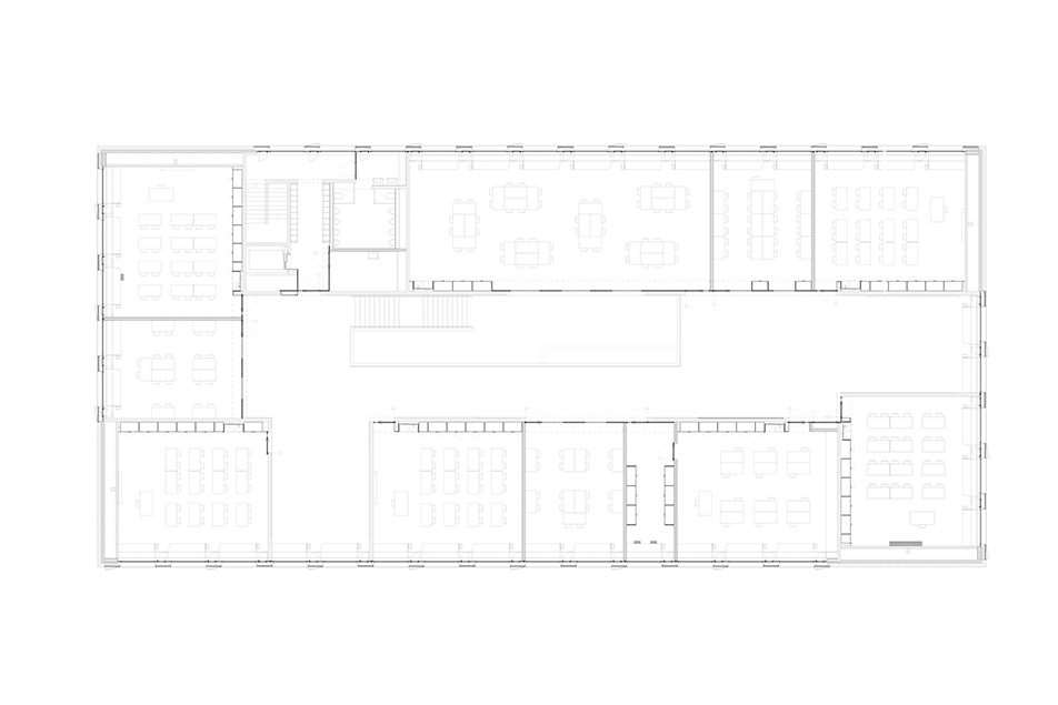
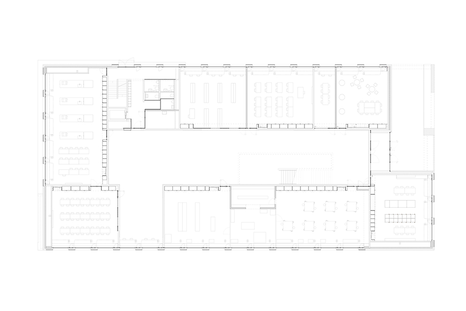
Bauherrschaft Volksschulgemeinde Neukirch - Egnach

Realisierung 2013-2016

Projektwettbewerb

Bilder Klaus Pichler